Hopp til innhold

Trygt og barnevennlig nabolag med mange andre nyetablerte familier. Flott plassert i enden av byggefeltet.

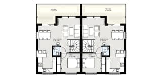
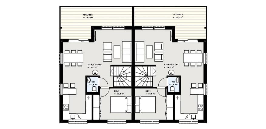
SOVEROM

3

EIENDOM

Eier (Selveier)

BRUKSAREAL

117

Kart

Adresse:Myrullvegen 31, 6847 Vassenden, Norge

Google Maps is loading
Kontakt

Se annonsen på Finn.no

https://www.finn.no/404297152