Hopp til innhold

Perfekt beliggenhet for aktive familier – skole, barnehage og fritidstilbud i umiddelbar nærhet

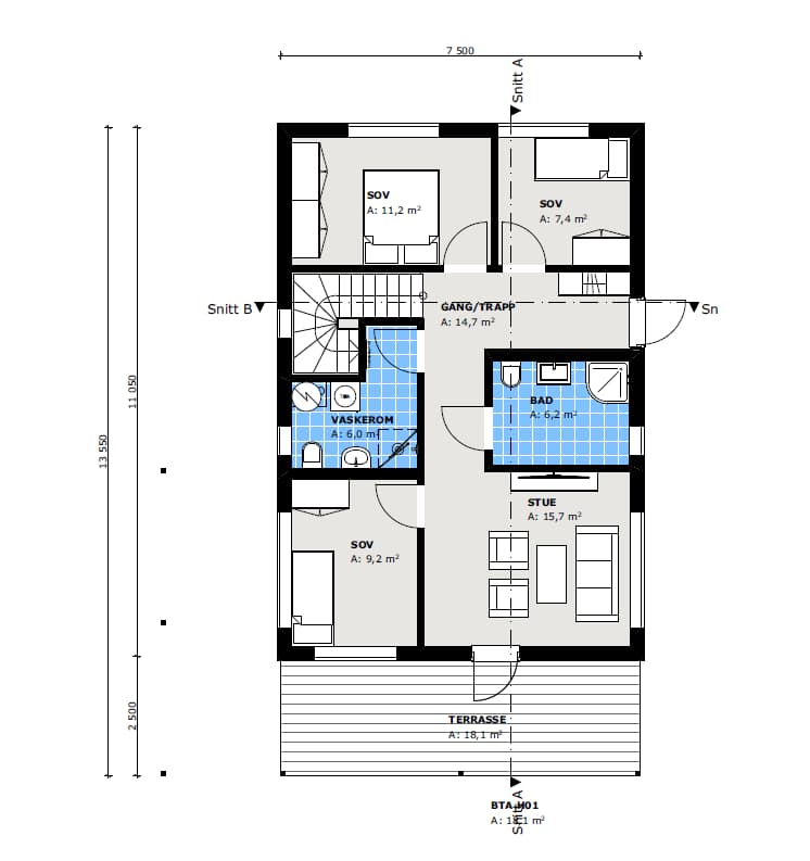
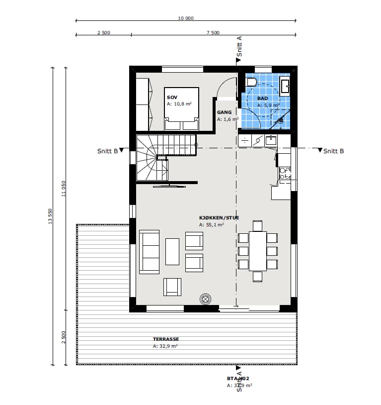
SOVEROM

4

EIENDOM

Eier (Selveier)

BRUKSAREAL

150

Kart

Adresse:Natveitåsen 61, 4760 Birkeland, Norge

Google Maps is loading
Kontakt

Se annonsen på Finn.no

https://www.finn.no/396696509