Nye, moderne og arealeffektive 2- og 4-mannsboliger i Kårvåg
PRIS
kr 2 590 000 - kr 4 590 000TOTALPRIS
kr 2 596 000 - kr 4 596 000EIENDOM
Eier (Selveier)BRUKSAREAL
Fra 45 m² til 61 m²Beskrivelse
I Kårvåg bygger vi nå to 4-mannsboliger og fire 2-mannsboliger.
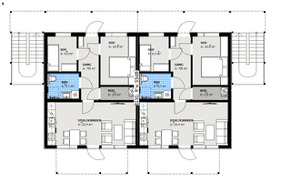
4-mannsbolig H01
4-mannsboligene består av to leiligheter på 58,8 m2 og to på 45,4 m2. Leiligheter i 2. etasje har inngang via utvendig trapp. Leiligheter i første etasje får da overbygget inngangsparti.
Leilighet 58,8 m2
- 2 soverom
- Åpen stue/kjøkkenløsning med dør ut til hage. I andre etasje dør ut til balkong på 10,6 m2.
- Bad med plass til vaskemaskin
- Bod/teknisk rom 2,7 m2
Leilighet 45,2 m2
- 1 soverom
- Åpen stue/kjøkkenløsning
- Bad med plass til vaskemaskin
- Bod på 3,9 m2
- Fra stua er det utgang til hage i første etasje, mens andre etasje har dør til balkong på 7,7 m2
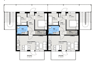
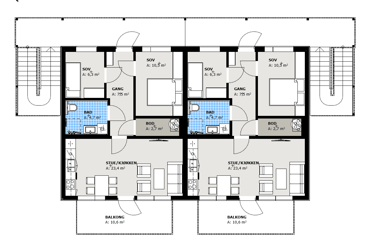
4-mannsbolig H04
4-mannsboligene består av fire leiligheter på 58,8 m2. Leiligheter i 2. etasje har inngang via utvendig trapp. Leiligheter i første etasje får da overbygget inngangsparti.
Leilighet 58,8 m2
- 2 soverom
- Åpen stue/kjøkkenløsning med dør ut til hage. I andre etasje dør ut til balkong på 10,6 m2.
- Bad med plass til vaskemaskin
- Bod/teknisk rom 2,7 m2
2-mannsboliger H02 og H03
Enhetene i tomannsboligen går over to plan med inngang og privat avdeling i første etasje. Her det to soverom, romslig bad med plass for vaskemaskin og hall med trapp opp til andre etasje. I første etasje er det også en sportsbod med dør fra utsiden. På siden av bygget er det carport. I andre etasje kommer man opp til åpen stue/kjøkkenløsning med utgang til veranda på 7,8 m2. Her er også hovedsoverommet med god garderobeplass og eget bad.
- 105 m2 BRA
- 3 soverom
- Åpen stue/kjøkkenløsning
- 2 bad
- Utvendig sportsbod
- Carport
2-mannsboliger H05 og H06
Denne tomannsboligen har også leiligheter over to plan, men er en mindre bolig enn boligtypen på H03. Oppholdsrommene
ligger i første etasje, med utgang til markterrasse. Under
trappa er det en liten bod for ekstra lagringsplass. I andre etasje
ligger de to soverommene og badet. Det er lagt inn vannbåren
varme på stue og kjøkken i 1. etasje. Passer godt for folk i
etableringsfasen, eller for de som ikke trenger så stor plass.
- 66 m2 BRA
- 2 soverom
- Åpen stue/kjøkkenløsning
- Carport
- Utvendig sportsbod
Hvorfor kjøpe nytt?
- Boligen er i forskriftsmessig stand med mange års reklamasjonsfrist.
- Energiøkonomiske og klimavennlige løsninger.
- Innflyttingsklar uten tanke på å måtte pusse opp først.
- Det er svært lite vedlikeholdskostnader i nær framtid.
- Lav dokumentavgift.
Kårvåg
Kårvåg ligger i Averøy Kommune på Nordmøre i Møre og Romsdal og består av flere store og mindre øyer ut mot Norskehavet. Nærmeste by er klippfisk og operabyen Kristiansund, kun 25 minutters kjøretur unna. Setter du kurs over Atlanterhavsveien kommer du etter 45 minutter til sjarmerende Molde by med flyplass og den kjente Jazzfestvalen.
Kårvåg Boligfelt består av 63 solrike tomter i naturskjønne omgivelser.
Her bor du med en majestetisk skjærgård som nærmeste nabo og et flott turterreng rett utenfor stuedøren. Med ny barnehage og ny skole på området er det sørget for trygg skolevei for de de minste. Barn som vokser opp i Kårvåg Boligfelt får et variert og allsidig fritidstilbud og behøver ikke å kjede seg.
Boligfeltet består av 63 boligtomter og grenser ned mot Kårvåg bukta med nærhet til dagligvare. Det skal etableres en småbåthavn med plass til ca 70 i tilknyttning til det nye sjøsportsenteret på området. Her tilbys gode opplevelser og livskvalitet for alle, og er et god sted å leve og et godt sted å bo.
Skole og fritid
Utheim skole ligger på Kårvåg, like ved Atlanterhavsveien. Skolen har 91 elever fra 1. – 7.klasse. Kårvåg Barnehage ligger bare en kort spasertur unna boligene. En liten kilometer unna finner du Båsemor barnehage. Kårvåg Idrettslag er en breddeklubb med tilbud innen orientering, ski og friidrett. Ønsker du å spille fotball er Kårvåg/Havørn Fotball stedet. Her er det tilbud til fotballspillere i alle aldere. Kårvåg Idrettslag disponerer også en flerbrukshall.
Dagligvare
I Kårvåg finner du dagligvarebutikkene Coop og Kiwi. Her har du et godt utvalg av varer og god service. Det er bra med parkering på utsiden og butikken har enkel tilkomst.
Spise ute?
En liten biltur unna er det også et utvalg spisesteder fra Bjartmars Favorittkro, Restaurant Ytterbrygga på Håholmen til Landgangen med italiensk meny. En annen plass verdt å nevne er Bud, et nett lite sted med kafeer og restauranter.
Fritid
I Kårvåg har du tilgang til et rikt og variert fritidstilbud gjennom natur, lag og foreninger. Med storslått natur rett utenfor stuedøren kan man gå på skattejakt i fjæra eller nyte en fantastisk utsikt fra Gulltanna 591 moh.
Nasjonal Turistvei Atlanterhavsveien er en helt unik veistrekning som fører deg helt ut i selve storhavet. Atlanterhavsveien ble i 2005 kåret til århundredets byggverk i Norge, og omtales også som verdens vakreste bilreise.
Håholmen er opprinnelig et livskraftig samfunn basert på handel, fiske og sjøtransport. I dag er det et etterspurt kurs-og konferansested for mennesker i fra hele verden og et treffsted for de som ønsker å ta del i det fantastiske området har å tilby.
Kart
Adresse:Buskardveien, Kårvåg, 6532 Averøy, Norge








































