Hopp til innhold

Sørlandsidyll i Brekkestø | solrik eiendom | kun 250 meter fra skjærgården | kontakt oss, vi bygger det du vil ha!

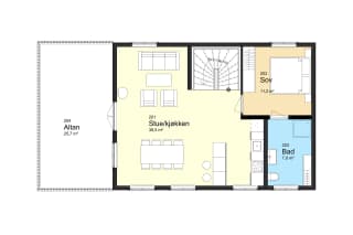
SOVEROM

4

EIENDOM

Eier (Selveier)

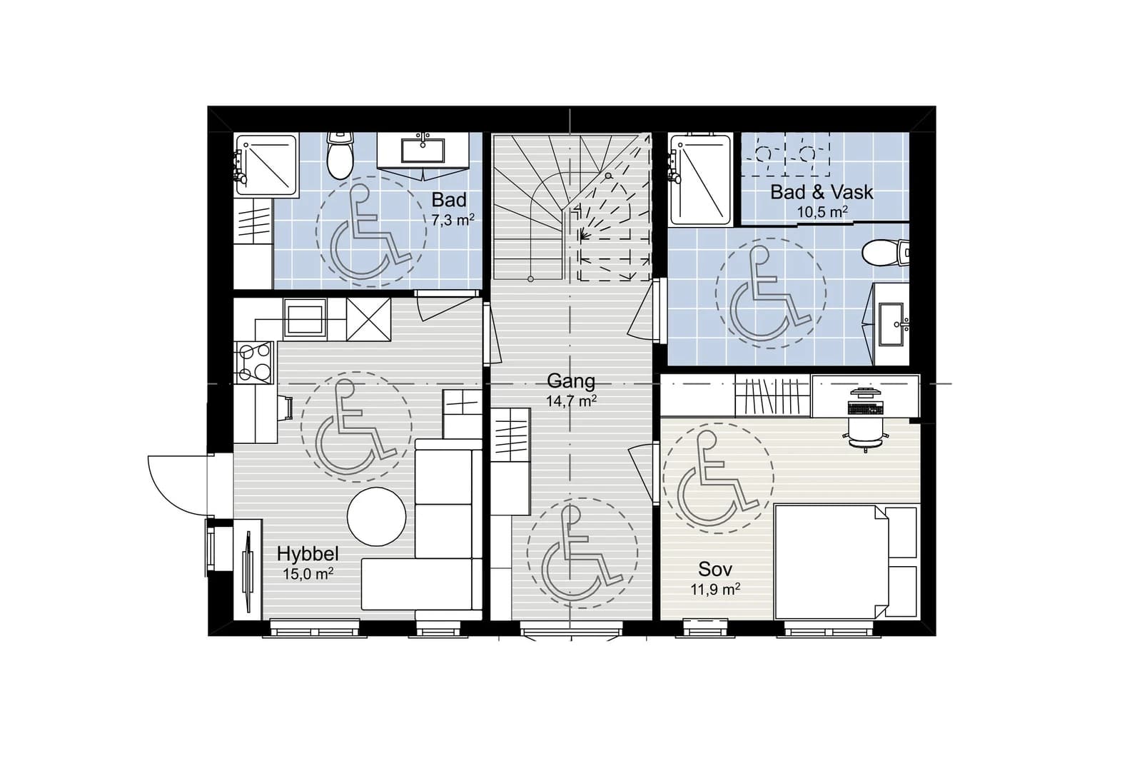
BRUKSAREAL

153

Kart

Adresse:Brekkestøheia 4, 4780 Brekkestø, Norge

Google Maps is loading
Kontakt
Vetle S. Jørgensen

Se annonsen på Finn.no

https://www.finn.no/302622954